Home
PROJECTS
About
Contact
Menu
Sutphin Architecture
Home
PROJECTS
About
Contact
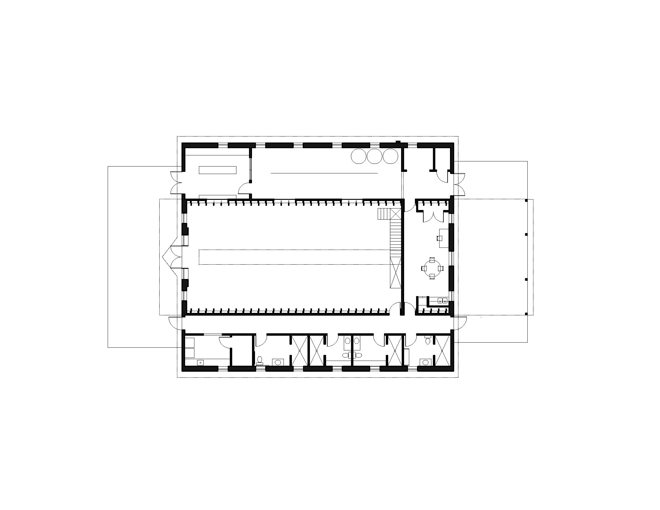
oakencroft WINERY
Landscape by WaterStreet studio
Interiors by DNB Design, LLC
Before
During