Home
PROJECTS
About
Contact
Menu
Sutphin Architecture
Home
PROJECTS
About
Contact
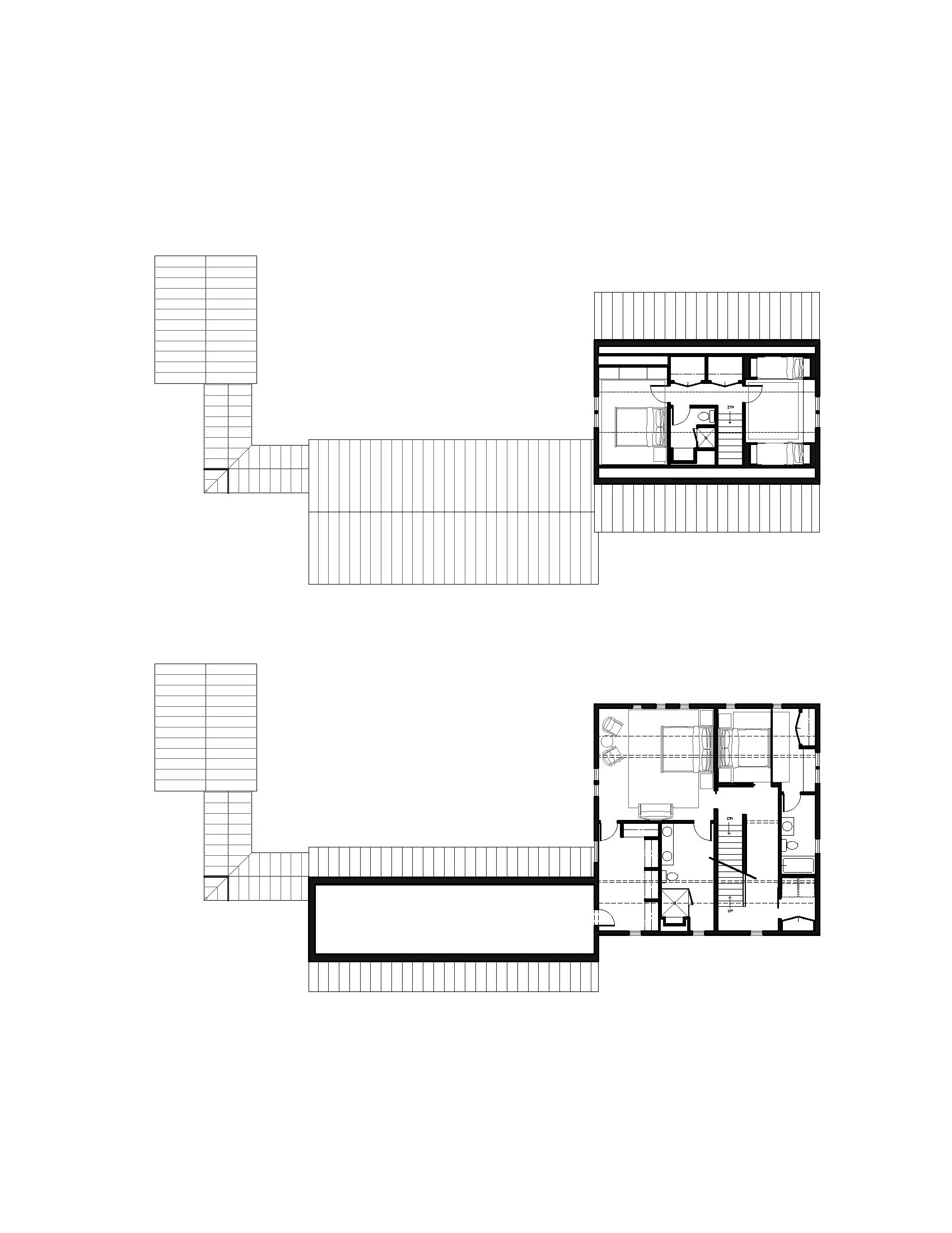
Westview
guest house